Villa a schiera in vendita

Villorba, Via Caseggiato
€ 200.000
4 locali 4 locali
195 Mq 195 Mq
2 bagni 2 bagni

Villa a schiera in vendita

Villorba, Via Caseggiato

Descrizione annuncio

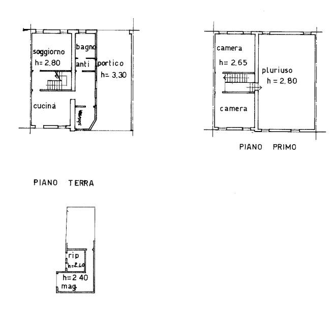
Nel comune di Villorba, proponiamo in vendita una villa a schiera centrale che si sviluppa su più livelli, offrendo una superficie complessiva di 195 mq. L'immobile è stato costruito nel 1950 e presenta spazi ben distribuiti. Al suo interno, la villa dispone di tre locali, tra cui due camere da letto e una camera aggiuntiva, ideale per uno studio o una sala hobby. Il bagno è funzionale e ben posizionato per servire comodamente l'intera abitazione. La proprietà include un box auto e un posto auto esterno, garantendo praticità e comodità per il parcheggio. Il giardino privato offre uno spazio verde per momenti di relax all'aperto. L'aria condizionata è presente, assicurando comfort durante i mesi più caldi. Questa villa rappresenta un'opportunità interessante per chi cerca una soluzione abitativa in una zona tranquilla e ben servita.

Scopri tutte le nostre offerte immobiliari su villorba1

Richiedi la VALUTAZIONE GRATUITA del tuo immobile direttamente dal sito.

Inoltre, il nostro team offre consulenza gratuita per mutui, con possibilità di finanziamento fino al 100%. Parla con i nostri specialisti del credito!

Mostra tutto

Nelle vicinanze

Trasporto pubblico Trasporto pubblico
Trasporto pubblico
2,3 Km
Ricariche auto elettriche Ricariche auto elettriche
Villorba Vittorio Emanuele II | EnelX
840 m
Scuole Scuole
Scuola Elementare Statale Scarpa
560 m
Scuola Media Statale Scarpa
570 m
Scuole
790 m
Scuola secondaria di primo grado di Paderno
3,0 Km
Farmacia Farmacia
Farmacia
870 m
Ospedali Ospedali
Casa di riposo e Centro diurno "Gino e Pierina MARANI"
2,6 Km
Avis Villorba - Centro donazioni
2,7 Km
Supermercati Supermercati
Panorama Centro Commerciale Villorba
2,4 Km
Despar
2,7 Km
Negozi Negozi
Abbigliamento Scandiuzzi
850 m
Panetteria
870 m
Sorelle Ramonda
2,3 Km
Atelier " La Sposa"
2,3 Km
Negozi
2,3 Km
Bar Bar
Dersut Cafè
870 m
Fantin
880 m
Nostro Bar
970 m
Bar Fortuna
2,9 Km
Bar
2,9 Km
Ristoranti Ristoranti
L'invito
880 m
Osteria "Da Vicino"
2,1 Km
Trattoria Alle Castrette
2,4 Km
Antica Pizza
2,7 Km
Pizzeria Papiermais
2,9 Km
Mostra tutto

Caratteristiche

Rif.:
61140613
Piano:
2 di 2 (Piano su più livelli)
Box:
1
Posti auto:
1
Camere da letto:
3
Arredamento:
Parziale
Mostra tutto
Prezzo Prezzo
€ 200.000
Rata mutuo Rata mutuo
€ 934 / mese
Spese annue Spese annue
€ 0
Proponi il tuo prezzoProponi il tuo prezzo

Altre caratteristiche

Classe Energetica

E
E
E
E
E
E
E
E
E
EP globale non rinnovabile:
177.07 kW h/m² anno
EP globale rinnovabile:
0.94 kW h/m² anno
EP invernale del fabbricato:
EP estiva del fabbricato:
Anno di costruzione:
1950
Riscaldamento:
Autonomo
Tipo impianto:
A radiatori
Tipo alimentazione:
Metano

Ti interessa visionare l'immobile?

Fissa un appuntamento  Fissa un appuntamento

Richiedi informazioni

Clicca su Leggi per aprire l'informativa
* Questi campi sono obbligatori

Calcola il tuo mutuo

Semplice e senza impegno
Anticipo

( % )
Mutuo

( % )

pochi semplici passi

inserisci i tuoi dati
Questionario completato
Grazie per aver richiesto un appuntamento senza impegno con un nostro Consulente del Credito e Assicurativo.

Hai inserito correttamente tutti i dati necessari e a breve riceverai una e-mail con un link da convalidare per inviare i tuoi dati.
Affiliato
Immobiliare La Fenice4 Sas
Via Donatori del Sangue, 9/1 31020 Villorba (TV)

Il nostro staff


  • Nicolò Furlan
    Collaboratore

  • Thomas Rossi
    Responsabile

  • Emanuele Sponchiado
    Responsabile

  • Pasquale Tagliafierro
    Affiliato

  • Alessandro Volpe
    Collaboratore
Via Donatori del Sangue, 9/1 31020 Villorba (TV)
Zona: Villorba
Mostra su mappa
Orari: Dal Lunedì al Venerdì 9.00-12.30 14.30-19.30; Sabato dalle 9.00-13.00 (su appuntamento)
Affiliato
Immobiliare La Fenice4 Sas
Via Donatori del Sangue, 9/1 31020 Villorba (TV)

2026 Tecnocasa Franchising S.p.A. - P. IVA 08365160152 - Via Monte Bianco 60/A 20089 Rozzano (MI). Ogni agenzia ha un proprio titolare ed è autonoma. Privacy policy | Policy utilizzo | Cookie policy